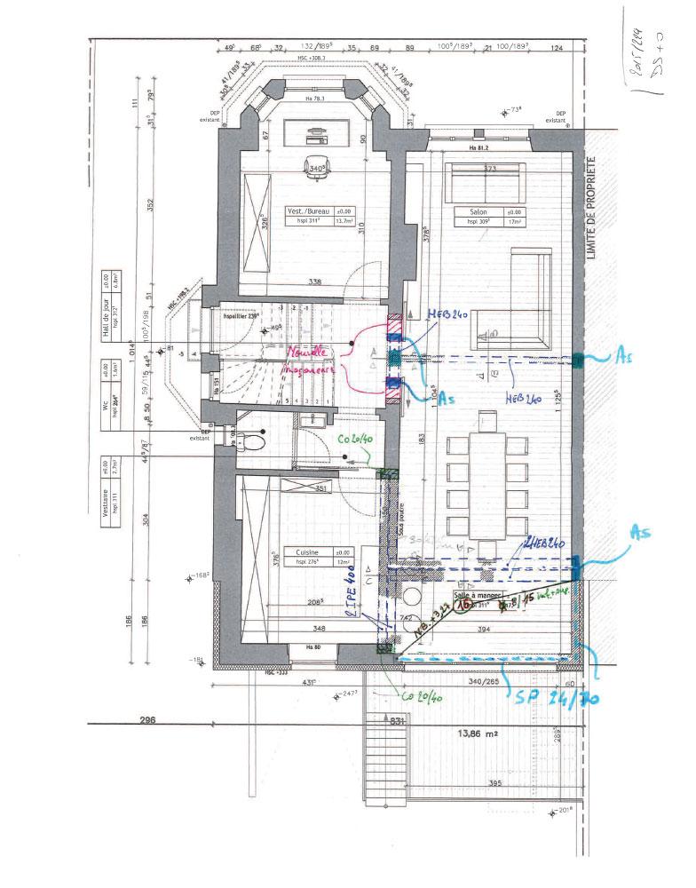
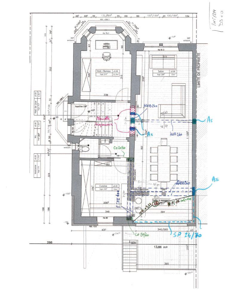
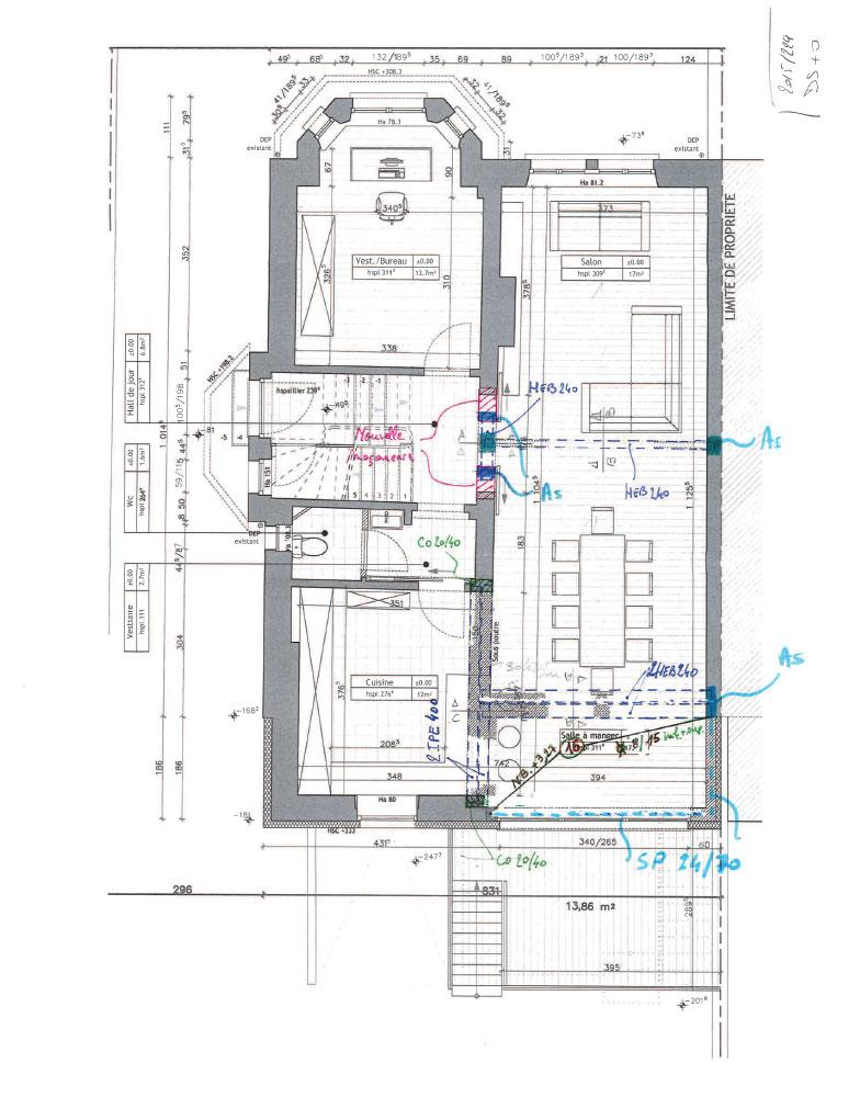
Transformation d'une maison unifamiliale
Transformation et agrandissement d'une maison unifamiliale située rue Jean Jaurès à Luxembourg. Le projet comprenait l'ouverture de la façade arrière en vue de l'agrandissement du rez-de-chaussée.
Architecte(s) : Damien Hublet www.extenso.lu - Cédric Gillis www.origami.lu
Lieu : Luxembourg